Описание

В продаже последний из пяти гарден-дуплексов (2+1) в великолепном новом жилом комплексе Novis Style, который находится в центре района Авсалар и в то же время окружен природой и открывает для вас двери в жизнь наполненную красками и домашним уютом!
Общая площадь земли: 2.027 м2, 1 блок.
No блока: 338, Участок No: 6
Общее количество этажей: 7 этажей + мансардный
Общее количество квартир: 41
Расстояние до центра Аланьи: 25 км.
Аэропорт Антальи: 150 км
Аэропорт Газипаша: 65 км
Расстояние от Novis Style до пляжа: 650 метров.
Расстояние до торгового рынка: 150 метров.
Жилой комплекс располагает богатой социальной инфраструктурой для удобства и комфорта будущих жильцов: Бассейн, Шезлонги у бассейна, Беседка, Освещение вокруг бассейна, Детская площадка, Зона барбекю, Ландшафтный сад.
Внутренняя инфраструктура составляет рецепшн, тренажерный зал, оснащенный профессиональным оборудованием, кафетерий, сауна, паровая комната, комната отдыха, раздевалки, душевые, туалеты.
Проектом предусмотрено 2 скоростных лифта на 6 человек,
генератор, консьерж-сервис, светодиодное освещение в помещениях и местах общего пользования, единая входная группа в комплекс, системы пожаротушения, видеонаблюдение на улице и в помещениях.
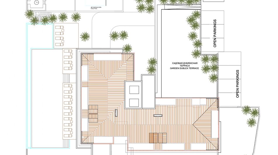
Данная квартира редкого, но очень востребованного формата садовый дублекс расположена на первом и втором этаже жилого комплекса, окна и терраса выходит тихий уютный двор утопающий в хвойных деревьях, на участке предусмотрен собственный бассейн на две квартиры!
Планировка:
1 этаж: холл, просторная кухня-гостиная, гостевой санузел, огромная терраса с выходом в сад;
2 этаж: холл, изолированная спальня, совмещенный санузел, мастер-спальня с собственным санузлом и большой гардеробной комнатой.
Все квартиры в жилом комплексе будут сдаваться с высококачественной дизайнерской отделкой под ключ.
Окна и двери ПВХ с двойным стеклопакетом и специальными теплоизоляционными стеклами в комнатах на полу ламинат высокого класса, потолок из гипсокартона со встроенными светильниками.
Предусмотрена установка видеодомофона, подготовка выводов под кондиционеры во всех комнатах, американские панельные межкомнатные двери, стеклянные ограждения на балконах.
Подключение спутникового телевидения к каждой квартире, интернет-инфраструктура для каждой квартиры, стальная входная дверь.
На кухне устанавливается качественный кухонный гарнитур с каменной столешницей, мойкой, светодиодной подсветкой и аксессуарами.
Полностью оборудованный санузел со встроенной мебелью, проточный водонагреватель , душевая кабина из закаленного стекла, вентиляционная установка, гидроизоляция полов и стен, роскошная, светлая, керамическая плитка от пола до потолка.
Цены стартовые, но осталось в продаже всего около десяти квартир. Есть другие квартиры с двумя и тремя спальнями: линейная 2+1, два пентхауса 2+1 и 3+1, а также 1+1 этажами выше и ниже. Отправим прайс-лист застройщика по запросу.
ДАТА НАЧАЛА ПРОЕКТА: 30.10.2022
ДАТА ЗАВЕРШЕНИЯ ПРОЕКТА: 30.04.2024

Тип балкона: терраса

Площадь комнат: 30, 15, 13

Площадь кухни: 12

Санузел: 3

Жилая площадь: 58

Этаж: 1

Тип дома: Монолитный

Готовность: Строится

Высота потолков: 3

Лесной участок: Да

Под ключ: Да

Лифт в доме: Да

Охраняемая территория: Да

Гарден Дублекс: Да

Есть вопросы по объекту? Звоните

Планировка

1 этаж: холл, просторная кухня-гостиная, гостевой санузел, огромная терраса с выходом в сад;
2 этаж: холл, изолированная спальня, совмещенный санузел, мастер-спальня с собственным санузлом и большой гардеробной комнатой.

Описание ЖК

Великолепный новый жилой комплекс Novis Style, который находится в центре района Авсалар и в то же время окружен природой и открывает для вас двери в жизнь наполненную красками и домашним уютом!

Общая площадь земли: 2.027 м2, 1 блок
Общее количество этажей: 7 этажей + мансардный
Общее количество квартир: 41
Расстояние до центра Аланьи: 25 км.
Аэропорт Антальи: 150 км
Аэропорт Газипаша: 65 км
Расстояние от Novis Style до пляжа: 650 метров.
Расстояние до торгового рынка: 150 метров.

Жилой комплекс располагает богатой социальной инфраструктурой для удобства и комфорта будущих жильцов: Бассейн, Шезлонги у бассейна, Беседка, Освещение вокруг бассейна, Детская площадка, Зона барбекю, Ландшафтный сад.

Внутренняя инфраструктура составляет рецепшн, тренажерный зал, оснащенный профессиональным оборудованием, кафетерий, сауна, паровая комната, комната отдыха, раздевалки, душевые, туалеты.

Проектом предусмотрено 2 скоростных лифта на 6 человек,

генератор, консьерж-сервис, светодиодное освещение в помещениях и местах общего пользования, единая входная группа в комплекс, системы пожаротушения, видеонаблюдение на улице и в помещениях.

Квартиры будут сдаваться с высококачественной дизайнерской отделкой под ключ.

Окна и двери ПВХ с двойным стеклопакетом и специальными теплоизоляционными стеклами в комнатах на полу ламинат высокого класса, потолок из гипсокартона со встроенными светильниками.

Предусмотрена установка видеодомофона, подготовка выводов под кондиционеры во всех комнатах, американские панельные межкомнатные двери, стеклянные ограждения на балконах.

Подключение спутникового телевидения к каждой квартире, интернет-инфраструктура для каждой квартиры, стальная входная дверь.

На кухне устанавливается качественный кухонный гарнитур с каменной столешницей, мойкой, светодиодной подсветкой и аксессуарами.

Полностью оборудованный санузел со встроенной мебелью, проточный водонагреватель , душевая кабина из закаленного стекла, вентиляционная установка, гидроизоляция полов и стен, роскошная, светлая, керамическая плитка от пола до потолка.

Большой выбор квартир с различными планировками: линейные 2+1, садовые дублексы 2+1 и 3+1, пентхаусы 2+1 и 3+1, и 1+1 на различных этажах. Рассрочка до окончания строительства.

ДАТА НАЧАЛА ПРОЕКТА: 30.10.2022
ДАТА ЗАВЕРШЕНИЯ ПРОЕКТА: 30.04.2024

Читать далее

Инфраструктура

На территории ЖК:

Бассейн
Детские площадки

Лот: 41942858

23938000

336200

290000

Записаться на просмотр
Предложите свою цену
В сравнение В избранное Скачать

130 м2

650 м до моря

Под ключ

Лесной участок

Ваш персональный менеджер

Коваленко Иван
Cпециалист по работе
с зарубежной недвижимостью

+7 (499) 110-58-18
Перезвонить мне

Похожие предложения

Коваленко Иван
Cпециалист по работе
с зарубежной недвижимостью

Помогу подобрать Вам недвижимость быстро и по привлекательной цене

Расположение ЖК