Описание

Новый проект клубного дома на 11 квартир Naula City 1 в центральной части района Оба понравится тем, кто любит тишину и покой, но при этом не готов отказываться от развитой городской инфраструктуры. Проектом предусматривает открытый бассейн и озеленение территории, магазин на первом этаже, электрогенератор, видеодомофон. В шаговой доступности множество кафе и ресторанов, супермаркеты, магазин METRO, поликлиника, детские сады и другие объекты инфраструктуры. До моря спокойным шагом можно дойти за 15 минут.
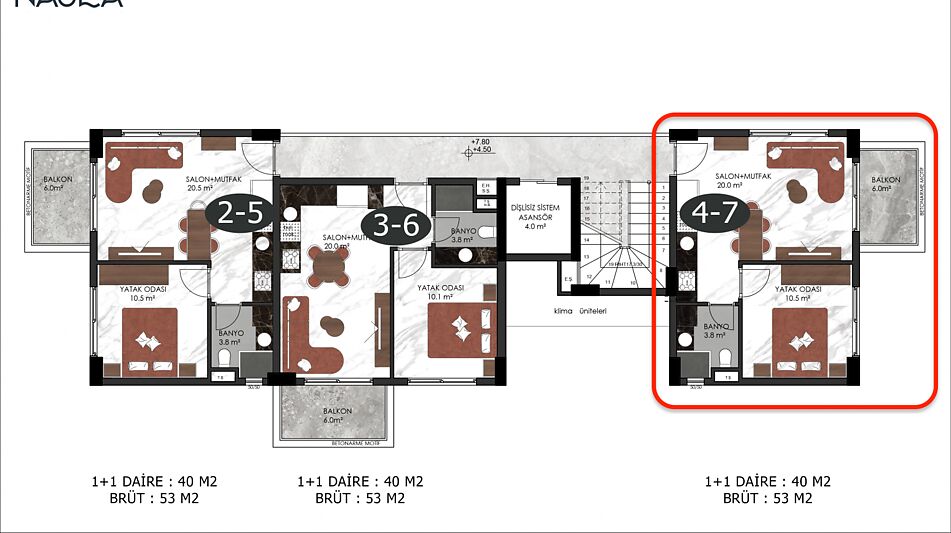
Предалагется евродвухкомнатная квартира площадью 40 кв.м. По планировке: кухня-гостиная, изолированная спальня, совмещенный санузел, большой балкон с видом на бассейн и горы.
Все квартиры в комплексе сдаются с высококачественной дизайнерской отделкой, встроенным кухонным гарнитуром, кондиционерами в каждой комнате, а также мебелью и сантехникой в санузлах.
При 100% оплате в течение одного месяца после заключения договора скидка 7%. Либо первоначальный взнос 25% и остаток беспроцентная рассрочка до окончания строительства.

Тип балкона: балкон

Площадь комнат: 20, 10.5

Площадь кухни: 9

Санузел: совмещенный

Жилая площадь: 30.5

Этаж: 2

Тип дома: Монолитный

Готовность: Строится

Высота потолков: 3

Под ключ: Да

Лифт в доме: Да

Есть вопросы по объекту? Звоните

Планировка

кухня-гостиная, изолированная спальня, совмещенный санузел, большой балкон с видом на бассейн и горы.

Описание ЖК

Новый проект клубного дома на 11 квартир Naula City 1 в центральной части района Оба понравится тем, кто любит тишину и покой, но при этом не готов отказываться от развитой городской инфраструктуры. Проектом предусматривает открытый бассейн и озеленение территории, магазин на первом этаже, электрогенератор, видеодомофон. В шаговой доступности множество кафе и ресторанов, супермаркеты, магазин METRO, поликлиника, детские сады и другие объекты инфраструктуры. До моря спокойным шагом можно дойти за 15 минут.

Все квартиры в комплексе сдаются с высококачественной дизайнерской отделкой, встроенным кухонным гарнитуром, кондиционерами в каждой комнате, а также мебелью и сантехникой в санузлах.

При 100% оплате в течение одного месяца после заключения договора скидка 7%. Либо первоначальный взнос 25% и остаток беспроцентная рассрочка до окончания строительства

Читать далее

Инфраструктура

На территории ЖК:

Детский сад
Супермаркет
Бассейн
Детские площадки
Хоккей
Спортивная площадка

Лот: 39935607

16354000

215000

182900

Записаться на просмотр
Предложите свою цену
В сравнение В избранное Скачать

40 м2

1500 м до моря

Под ключ

Ваш персональный менеджер

Коваленко Иван
Cпециалист по работе
с зарубежной недвижимостью

+7 (499) 110-58-18
Перезвонить мне

Похожие предложения

Коваленко Иван
Cпециалист по работе
с зарубежной недвижимостью

Помогу подобрать Вам недвижимость быстро и по привлекательной цене

Расположение ЖК