Описание

Новый проект клубного дома на 11 квартир Naula City 1 в центральной части района Оба понравится тем, кто любит тишину и покой, но при этом не готов отказываться от развитой городской инфраструктуры. Проектом предусматривает открытый бассейн и озеленение территории, магазин на первом этаже, электрогенератор, видеодомофон. В шаговой доступности множество кафе и ресторанов, супермаркеты, магазин METRO, поликлиника, детские сады и другие объекты инфраструктуры. До моря спокойным шагом можно дойти за 15 минут.

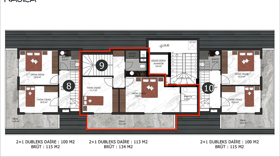
Предлагается шикарный двухуровневый пентхаус площадью 113 кв.м. По планировке:

1 этаж: кухня-столовая-гостиная, гостевой санузел, большой балкон с видом на горы;

2 этаж: холл второго этажа, спальня, санузел, мастер-спальня со своим санузлом, большая терраса с видом на горы.

Все квартиры в комплексе сдаются с высококачественной дизайнерской отделкой, встроенным кухонным гарнитуром, кондиционерами в каждой комнате, а также мебелью и сантехникой в санузлах.

При 100% оплате в течение одного месяца после заключения договора скидка 7%. Либо первоначальный взнос 25% и остаток беспроцентная рассрочка до окончания строительства.

Тип балкона: 2 балкона

Площадь комнат: 24, 19, 11.7

Площадь кухни: 12

Санузел: 3

Жилая площадь: 54.7

Этаж: 4

Тип дома: Монолитный

Готовность: Строится

Высота потолков: 3

Под ключ: Да

Лифт в доме: Да

Пентхаус: Да

Есть вопросы по объекту? Звоните

Планировка

1 этаж: кухня-столовая-гостиная, гостевой санузел, большой балкон с видом на горы;

2 этаж: холл второго этажа, спальня, санузел, мастер-спальня со своим санузлом, большая терраса с видом на горы.

Описание ЖК

Новый проект клубного дома на 11 квартир Naula City 1 в центральной части района Оба понравится тем, кто любит тишину и покой, но при этом не готов отказываться от развитой городской инфраструктуры. Проектом предусматривает открытый бассейн и озеленение территории, магазин на первом этаже, электрогенератор, видеодомофон. В шаговой доступности множество кафе и ресторанов, супермаркеты, магазин METRO, поликлиника, детские сады и другие объекты инфраструктуры. До моря спокойным шагом можно дойти за 15 минут.
Все квартиры в комплексе сдаются с высококачественной дизайнерской отделкой, встроенным кухонным гарнитуром, кондиционерами в каждой комнате, а также мебелью и сантехникой в санузлах.
При 100% оплате в течение одного месяца после заключения договора скидка 7%. Либо первоначальный взнос 25% и остаток беспроцентная рассрочка до окончания строительства.

Читать далее

Инфраструктура

На территории ЖК:

Детский сад
Супермаркет
Бассейн
Детские площадки
Хоккей
Спортивная площадка

Лот: 39946315

26735000

329200

284900

Записаться на просмотр
Предложите свою цену
В сравнение В избранное Скачать

113 м2

1500 м до моря

Под ключ

Ваш персональный менеджер

Коваленко Иван
Cпециалист по работе
с зарубежной недвижимостью

+7 (499) 110-58-18
Перезвонить мне

Похожие предложения

Коваленко Иван
Cпециалист по работе
с зарубежной недвижимостью

Помогу подобрать Вам недвижимость быстро и по привлекательной цене

Расположение ЖК